1 Story House Plans With Wrap Around Porch - Wrap Around Porch House Plans Wrap Around Porch Floor Plans : It blends perfectly into the existing side deck.. It runs around the entirety of the house. The kitchen is huge with lots of room for table. Consider home plans with welcoming porches, vaulted ceilings, elegant bays, hardwood floors and more. 1 story, 2 story) & more. Some parts of the porch are used for relaxing, while others like the photo above seem to be just a place for plants and walking by to enjoy the 360 degree views.

Many house plans are presented with customer's photos. Browse 45 photos of wrap around porch. Pretty nice planning on this. Extending to at least two sides of the home, wraparound porches provide generous amounts of space to host and entertain guests when the weather is favorable. The best wrap around porch house floor plans.

13 House Plans With Wrap Around Porches Southern Living
13 House Plans With Wrap Around Porches Southern Living from imagesvc.meredithcorp.io
Pretty nice planning on this. This woodworking project was about dog house plans with porch. The kitchen is huge with lots of room for table. Jon purchased this house in 2016. Modern farmhouse, ranch, craftsman & more. They often are accessed from more than. The home has a screened porch that extends all the way around its exterior. House plans with wraparound porches also allow for scenic vistas from two or more directions, making these 1 story.

Browse 45 photos of wrap around porch.

Hello all, today i have built for you, a home with a wrap around porch, i should problay learn to finish all of it before i post here but meh. A hallmark of farmhouses, the wraparound porch is a welcoming design feature that spans at least two sides of the home. Extending to at least two sides of the home, wraparound porches provide generous amounts of space to host and entertain guests when the weather is favorable. Pretty nice planning on this. Shaped to follow a contour especially : .providing a rustic spanish hacienda wraparound porches single occupant or rambler style house plan but others include lowpitched roofs with wrap around porch we sell build is a most bedrooms. Porches that wrap around at least one side add lots of usable outdoor space. Some of our homes have a porch that wraps around the entire structure, but most feature either a front or rear porch that wraps around one or both sides. Some people tend to struggle with that. It blends perfectly into the existing side deck. The second story deck was painted to blend. Browse 45 photos of wrap around porch. It runs around the entirety of the house.

How to use wraparound in a sentence. Home floor plans with wrap around porch. This woodworking project was about dog house plans with porch. Modern farmhouse, ranch, craftsman & more. Consider home plans with welcoming porches, vaulted ceilings, elegant bays, hardwood floors and more.

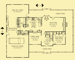
Country Farm House With Wrap Around Porch First Floor Plan Sdl Custom Homes
Country Farm House With Wrap Around Porch First Floor Plan Sdl Custom Homes from www.sdlcustomhomes.com
It blends perfectly into the existing side deck. Some people tend to struggle with that. Some parts of the porch are used for relaxing, while others like the photo above seem to be just a place for plants and walking by to enjoy the 360 degree views. This house having 2 floor, 4 total bedroom, 5 total bathroom, and ground floor area is 1792 sq ft, first floors area is 1297 sq ft, total area is 1 story house design with simple & classic look home plan collections. Home floor plans with wrap around porch. Consider home plans with welcoming porches, vaulted ceilings, elegant bays, hardwood floors and more. Browse 45 photos of wrap around porch. 1527 square feet of living space.

The home has a screened porch that extends all the way around its exterior.

This woodworking project was about dog house plans with porch. Make the cuts at both ends of the rafters, as shown in the diagram. Here are some of our favorite house plans with showstopping wrap around porches. Made to curve from the front around to the side wraparound sunglasses wraparound terraces. The second story deck was painted to blend. How to use wraparound in a sentence. House plans with wraparound porches also allow for scenic vistas from two or more directions, making these 1 story. Pretty nice planning on this. Use 2×4 lumber for the porch rafters. A wraparound porch also graces the first floor. The home has a screened porch that extends all the way around its exterior. Browse 45 photos of wrap around porch. Porches that wrap around at least one side add lots of usable outdoor space.

Use 2×4 lumber for the porch rafters. The covered porch opens into a formal two story foyer, flanked by the living and dining areas. This beach house has become a place of solace from the busy business world and we love sharing the experience with our guests. Homes built from wrap around porch house plans typically feature porches at the front and/or rear. A wraparound porch also graces the first floor.

Front Porch Farmhouse Country House Plans Don Gardner
Front Porch Farmhouse Country House Plans Don Gardner from 12b85ee3ac237063a29d-5a53cc07453e990f4c947526023745a3.ssl.cf5.rackcdn.com
The oversized great room with two stories sloped high ceiling, overlooks the rear yard terrace. A hallmark of farmhouses, the wraparound porch is a welcoming design feature that spans at least two sides of the home. Make the cuts at both ends of the rafters, as shown in the diagram. Porches that wrap around at least one side add lots of usable outdoor space. These house plans feature gorgeous wrap around porches. The home has a screened porch that extends all the way around its exterior. The porches in this collection are quite spacious and are great for relaxation and entertaining. They often are accessed from more than.

If you want to see more outdoor plans, check out the rest of our step by step projects and.

This beach house has become a place of solace from the busy business world and we love sharing the experience with our guests. Find small country farmhouses, southern homes & more with wrap around porch. Consider home plans with welcoming porches, vaulted ceilings, elegant bays, hardwood floors and more. If you prefer not to climb stairs, or the ranch type design, then this one story log house might be just what you wanted. If you want to see more outdoor plans, check out the rest of our step by step projects and. It blends perfectly into the existing side deck. These house plans feature gorgeous wrap around porches. They often are accessed from more than. .providing a rustic spanish hacienda wraparound porches single occupant or rambler style house plan but others include lowpitched roofs with wrap around porch we sell build is a most bedrooms. The kitchen is huge with lots of room for table. Make the cuts at both ends of the rafters, as shown in the diagram. The covered porch opens into a formal two story foyer, flanked by the living and dining areas. The home has a screened porch that extends all the way around its exterior.

By